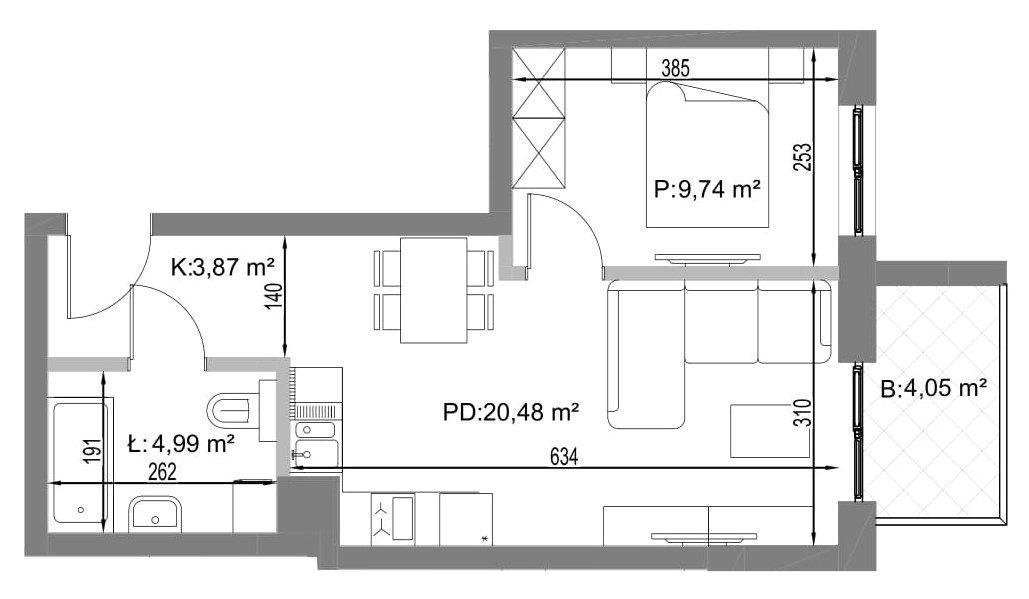
Klc/M215

Piętro
2
Liczba pokoi
2
Powierzchnia mieszkania
39,75 m2
Cena za m2
9.100 zł
Wartość brutto
361.725 zł
KOMUNIKACJA
3,87 m²
ŁAZIENKA
4,99 m²
POKÓJ Z ANEKSEM
20,46 m²
POKÓJ
9,74 m²
BALKON
4,05 m2

Kontakt z biurem sprzedaży

Nasi sprzedawcy odpowiedzą na wszelkie pytania. Użyj formularza lub skontaktuj się bezpośrednio.

Nowa inwestycja w Koszalinie
Jana Pawła II

Chcesz wiedzieć więcej?
 Tel. 787 126 566
 Biuro Sprzedaży – ul. Staszica 16/1, Koszalin